When you’re building or renovating your home, there are stages in the process that are simply non-negotiable — and two of those are internal elevations and lighting design.
It’s easy to assume your builder will “get it” based on your floorplan, or that lighting can be sorted later. But let me tell you from years of experience — skipping over these will cost you. And not just money, but also functionality, comfort, and even how you feel in your home.
Let’s dive into why these two often-overlooked design stages are so critical.

Internal Elevations – More Than Just Joinery
Think of internal elevations as the ‘map’ for how your cabinetry, windows, splashbacks, and fittings all come together. Without this detailed documentation, your builder is flying blind. Or more accurately — building blind.
Here’s why internal elevations matter:
- The design ‘heavy lifting’ is done here. Floorplans are just the start. Internal elevations bring the design functionality to life.
- Control the outcome. They provide documentation for you to refer to and something you can communicate with your builder on. Want floating cabinetry? Specific splashback heights? Undermount sinks? It’s all detailed here — not left to guesswork on site.
- Save on variations. Clear documentation means fewer unexpected costs or last-minute changes.
- Avoid onsite decisions. Changes on paper are easy. Changes on site? Not so much — and rarely cheap. Plus, you’ll need to be onsite more to answer all the unknowns. What is your hourly rate worth?
- Get what you want. It’s not just about what looks good. It’s about what you need to store, use, and access in your daily life
In the early stages, the right questions should be asked — and asked early. For example:
- What do you need to store, and where?
- Do you need an appliance cupboard?
- What appliances will be built-in?
- How and where do you like to store your food?
- Do you need a separate breakfast or coffee prep area?
- Where would you ideally like your microwave, and at what height?
- Are shelves fixed or adjustable?
All of this feeds into functionality and drives the design thinking — with your lifestyle at the centre of

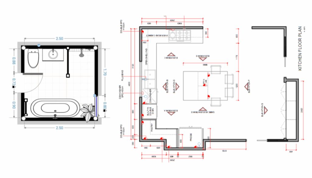
If you handed this floorplan to your builder, how could he build what you wanted from this?
Some of the questions the builder would have that the plans don’t show could be;
- What’s the height of the splashback?
- Is the rangehood built-in?
- What are the heights of the benches?
- Are there cupboards or shelves above?
- What’s the thickness of the benchtop?
- Are there cupboards or drawers under the bench?
And this is just for starters!
Without internal elevations?
- Quotes are inaccurate.
- Design compromises creep in.
- Functionality suffers.
- You end up guiding your builder on site — or worse, retrofitting later at a much higher cost (if retro-fitting is possible)!
- And I can guarantee you, it will cost you more than the investment of internal elevations.
It’s a recipe for stress and disappointment. That’s why we say: Design first. Build second. Always.

Lighting Design – Functionality Meets Mood
Lighting can transform a space — or completely ruin it. It impacts how you use a room, how it feels, and even your energy bills.
A floorplan might show where a light fitting goes, but it won’t tell you what type of light it is, what it’s for, or whether it’s in the right spot.
Let’s break it down.

Layered Lighting: The Real Game Changer
Good lighting design includes multiple layers:
- Task Lighting: Functional lighting for kitchens, bathrooms, studies. It lets you see what you’re doing.
- Ambient Lighting: This sets the mood. Think wall lights or soft uplighting in living rooms and bedrooms.
- Decorative Lighting: Your pendants, table lamps and statement pieces — they’re part of the design too.
And here’s the truth: Downlights alone won’t cut it.
You need:
- Strategic placement (not a blanket grid of downlights!).
- Flexibility through switching and dimmers.
- Consideration of how each room will be used — for homework, reading, cooking, relaxing.
Done properly, lighting becomes more than just utility — it becomes an experience.
Plan Ahead. Regret Nothing.
When internal elevations and lighting design are thought through early, you’re in the driver’s seat.
You get:
- A design that works for your lifestyle.
- Clarity before you build.
- Confidence that nothing has been left to chance.
- A home that feels as good as it looks.
Your home is your haven. It should reflect you — not what your builder assumed you wanted.
That’s why at White Pebble Interiors, we ensure all the ‘thinking work’ is done upfront. It saves you time, money, and a whole lot of unnecessary stress later on.

